Tournois.nl verwendet Cookies. Durch die weitere Nutzung dieser Website erklären Sie sich damit einverstanden.
Cookie-instellingenOmschrijving
Freistehendes Ferienhaus mit großzügiger Terrasse in Toplage an der Westerschelde!
An einem einzigartigen Ort am Rande des Ferienparks Village Scaldia in Hoofdplaat finden Sie dieses gemütliche Ferienhaus mit großzügiger Terrasse und Balkon auf einem 322 m² großen Grundstück. Das Haus verfügt über ein helles Wohnzimmer mit offener Küche, drei geräumige Schlafzimmer, ein gepflegtes Badezimmer und viel Platz im Freien, um die Ruhe, die Sonne und das Meer zu genießen.
Dieses Haus ist ideal für alle, die eine Zweitwohnung mit einer wunderschönen Aussicht und in Laufnähe zur Westerschelde suchen.
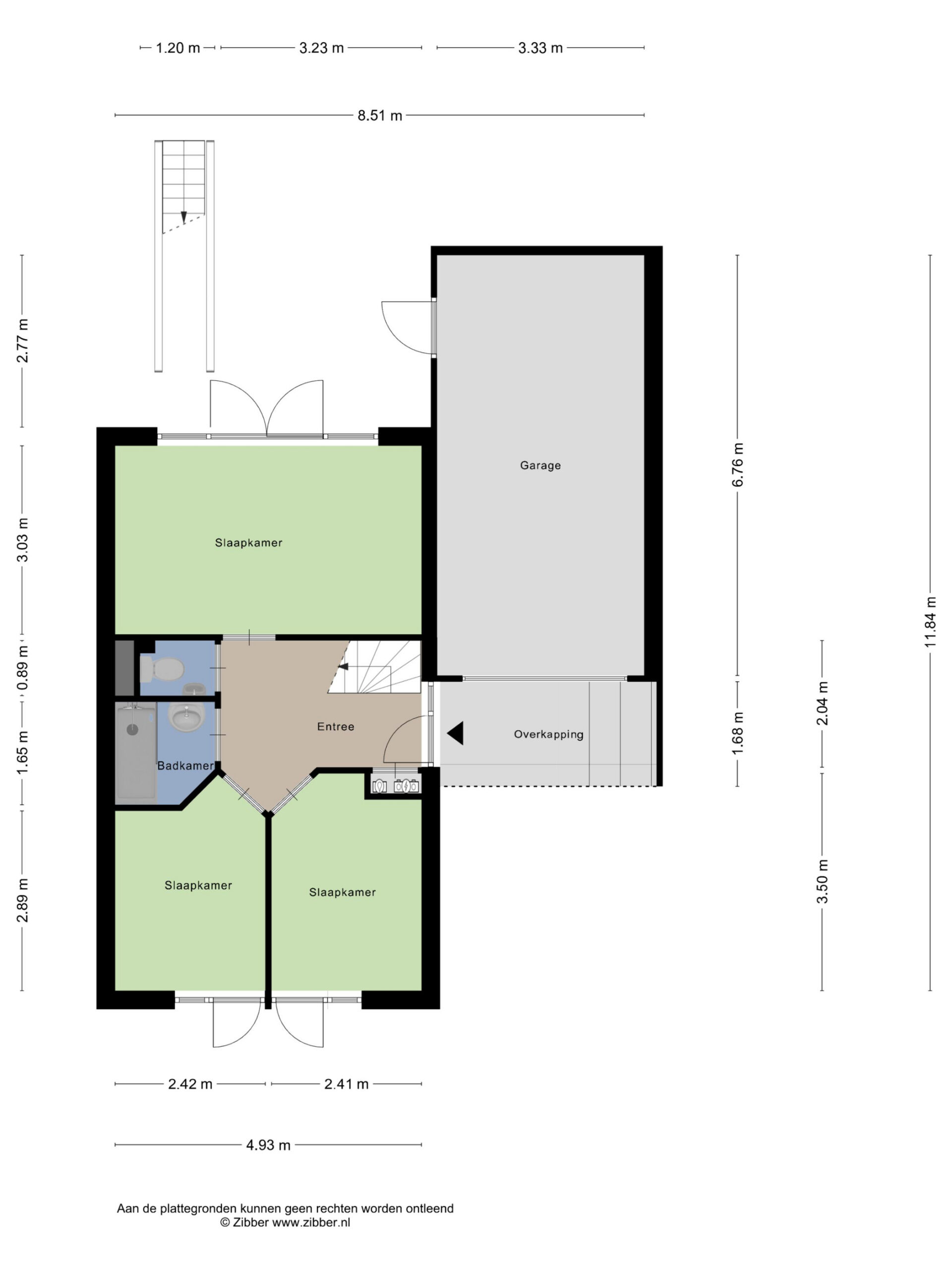
Aufteilung:
Durch den Eingangsbereich gelangen Sie in den Flur mit Zugang zu drei geräumigen Schlafzimmern. Eines der Schlafzimmer verfügt über Flügeltüren zum Garten, sodass Sie hier in aller Ruhe die frische Luft genießen können. Das gepflegte Badezimmer ist mit einer Badewanne, einem Waschbecken und einem Heizkörper ausgestattet. Außerdem gibt es ein separates WC.
Erster Stock:
Die offene Treppe im Flur führt zum hellen und geräumigen Wohnbereich. Hier befinden sich das Wohnzimmer, das Esszimmer und die offene Küche in einem großzügigen Raum. Die Küche ist mit verschiedenen Einbaugeräten ausgestattet, darunter ein Kühlschrank mit Gefrierfach, ein Kochfeld, ein Backofen, eine Dunstabzugshaube, ein Geschirrspüler und eine Spüle. Dank der großen Fenster und der Flügeltüren zum Balkon und zur großzügigen Terrasse wirkt diese Etage besonders geräumig und hell. Die Terrasse auf der Rückseite ist ideal für lange Sommerabende in der Sonne.
Außenbereich:
Das Haus verfügt über einen großen Garten mit freiem Blick auf die umliegende Natur und die Dünen von Hoofdplaat. Hier finden Sie eine große geflieste Terrasse und viel Privatsphäre. An der Vorderseite des Hauses befindet sich ein zweiter Balkon, der vom Wohnzimmer aus zugänglich ist. Darüber hinaus verfügt das Haus über einen eigenen Parkplatz und eine Garage mit ausreichend Platz zum Parken Ihres Autos.
Baujahr: 1998
Fensterrahmen: Holzfensterrahmen mit Doppelverglasung
Heizung: Zentralheizungskessel aus dem Jahr 2014
Besonderheiten:
- Einzigartige Lage an der Zeedijk mit Blick auf die Westerschelde;
- Großzügige Dachterrasse;
- Eigene geräumige Auffahrt mit Parkmöglichkeiten;
- Möbliert angeboten;
- Gute Vermietungsmöglichkeiten (wird nicht als Mietobjekt genutzt);
- Parkkosten 2025: 1.303,18 € pro Jahr;
- Energielabel C;
Diese Immobilie ist perfekt für alle, die einen sorgenfreien Ort am Meer mit Komfort, Ruhe und Platz suchen. Interessiert? Kontaktieren Sie uns gerne für weitere Informationen oder um einen Besichtigungstermin zu vereinbaren!
Overdracht
- Vraagprijs € 249.000,- k.k.
- Status Beschikbaar
- Aanvaarding In overleg
Bouw
- Soort woonhuis Geschakelde woning
- Soort bouw Bestaande bouw
- Bouwjaar 1998
- Soort dak Zadeldak
Oppervlakten en inhoud
- Wonen 87 m2
- Overige inpandige ruimte 23m2
- Perceel 322m2
- Inhoud 395m3
Indeling
- Aantal kamers 4 kamers
- Aantal badkamers 1 badkamer
- Badkamervoorzieningen Douche, wastafel
- Aantal woonlagen 2 woonlagen
Energie
- Energielabel C
- Isolatie Dubbel glas, volledig geisoleerd
- Verwarming Cv ketel
- Warm water Cv ketel
Kadastrale gegevens
- Eigendomssituatie Volle eigendom
Buitenruimte
- Ligging Aan park, aan rustige weg, vrij uitzicht, zeezicht
- Tuin Achtertuin, voortuin
- Ligging tuin Aan park, aan rustige weg, vrij uitzicht, zeezicht
Garage
- Soort garage Aangebouwd hout
- Capaciteit 1 auto
Plattegronden


