Tournois.nl verwendet Cookies. Durch die weitere Nutzung dieser Website erklären Sie sich damit einverstanden.
Cookie-instellingenOmschrijving
Bent u op zoek naar een woning die comfort, ruimte en een schitterende locatie combineert? Deze vrijstaande woning aan de rand van Philippine biedt alles wat u zoekt. Met 4 ruime slaapkamers, 2 badkamers, een garage en een zonnige tuin op het zuiden, is dit een unieke kans. De woning is gelegen op een royaal perceel van 1401 m² eigen grond en biedt vrij uitzicht op de polder.
Wilt u deze prachtige woning zelf ervaren? Maak dan snel een afspraak voor een bezichtiging en ontdek wat dit huis u te bieden heeft!
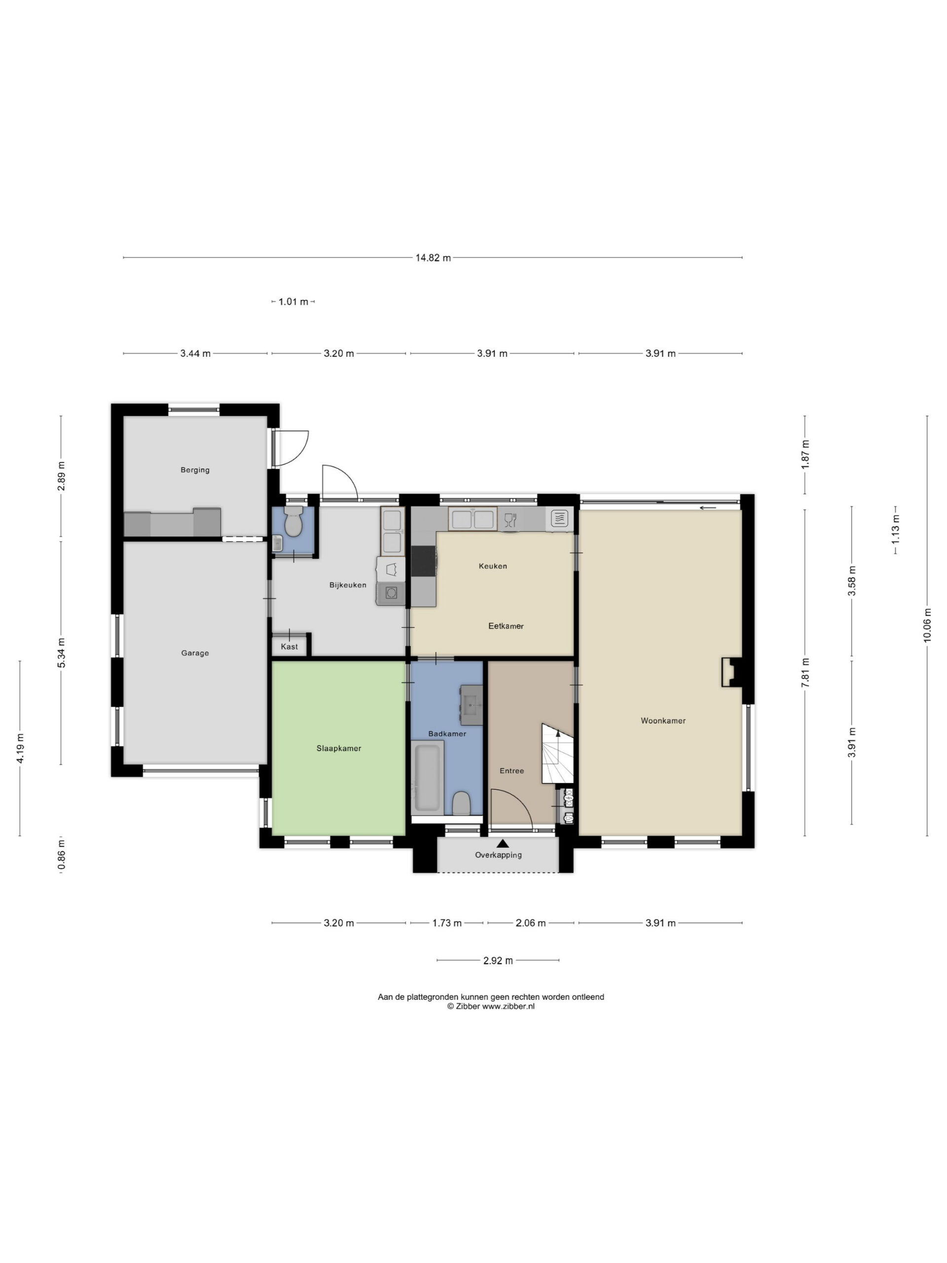
Begane grond:
Bij binnenkomst betreedt u een ruime hal die toegang biedt tot de lichte woonkamer, voorzien van een moderne gashaard voor extra sfeer. De gesloten keuken is uitgerust met diverse inbouwapparatuur, waaronder een inductiekookplaat, oven, koelkast, vaatwasser en afzuigkap. Vanuit de keuken bereikt u de bijkeuken en de badkamer. De badkamer op de begane grond beschikt over een ligbad, toilet en wastafelmeubel en geeft toegang tot een slaapkamer.
De bijkeuken, met aparte toiletruimte, biedt toegang tot de garage met elektrische deur en de berging. Via de bijkeuken en berging bereikt u ook de achtertuin.
Verdieping:
De eerste verdieping biedt volop ruimte met twee ruime slaapkamers, een moderne badkamer en een balkon. De badkamer is voorzien van een inloopdouche, toilet en wastafelmeubel. Het balkon, bereikbaar via de overloop, biedt een prachtig uitzicht over de omgeving. De slaapkamer aan de linkerzijde geeft toegang tot een vierde royale slaapkamer.
Tuin:
De royale achtertuin ligt op het zuiden, perfect voor wie graag van de zon geniet. Een groot terras biedt ruimte voor een gezellige zit- of eethoek, terwijl het tuinhuis extra opslag- of hobbyruimte biedt. De woning beschikt daarnaast over een ruime oprit op eigen terrein.
Bouwjaar: 1994
Kozijnen: Houten kozijnen (schuifpui van kunststof) met dubbel glas
Verwarming: cv-ketel 2010
bijzonderheden:
* achtertuin gelegen op het zuiden;
* vrij uitzicht op het polderlandschap;
* moderne houtkachel in de woonkamer;
* slaapkamer en badkamer op de begane grond;
* energielabel B.
Overdracht
- Vraagprijs € 549.000,- k.k.
- Status Onder voorbehoud verkocht
- Aanvaarding In overleg
Bouw
- Soort woonhuis Vrijstaande woning
- Soort bouw Bestaande bouw
- Bouwjaar 1994
- Soort dak Zadeldak
Oppervlakten en inhoud
- Wonen 163 m2
- Overige inpandige ruimte 29m2
- Externe bergruimte 20m2
- Perceel 1401m2
- Inhoud 712m3
Indeling
- Aantal kamers 5 kamers
- Aantal badkamers 2 badkamers
- Badkamervoorzieningen Ligbad, toilet, wastafelmeubel, toilet, douche, wastafelmeubel
- Aantal woonlagen 2 woonlagen
- Voorzieningen Rolluiken, schuifpui
Energie
- Energielabel B
- Isolatie Dubbel glas, volledig geisoleerd
- Verwarming Cv ketel, gashaard
- Warm water Cv ketel
Kadastrale gegevens
- Eigendomssituatie Volle eigendom, volle eigendom, volle eigendom
Buitenruimte
- Ligging Aan rustige weg, vrij uitzicht
- Tuin Tuin rondom
- Ligging tuin Aan rustige weg, vrij uitzicht
- Soort berging Aangebouwd steen
Garage
- Soort garage Inpandig
- Capaciteit 1 auto
Plattegronden



