Tournois.nl verwendet Cookies. Durch die weitere Nutzung dieser Website erklären Sie sich damit einverstanden.
Cookie-instellingenOmschrijving
Gemütliches Ferienhaus in Laufnähe zum Strand und Meer – Schoneveld 163, Breskens
Sind Sie auf der Suche nach einem Ferienhaus in ruhiger Lage, in Laufnähe zum Strand und Meer? Dann ist Schoneveld 163 in Breskens vielleicht genau das Richtige für Sie. Dieses gemütliche Reihenhaus (Typ Duinroos) auf einem 157 m² großen Grundstück bietet den Komfort und die Lage, die ideal für Entspannung an der Küste von Zeeland sind.
Die günstige Lage in der Nähe der weitläufigen Strände und des lebhaften Zentrums von Breskens, kombiniert mit einer gepflegten Ausstattung und einer praktischen Aufteilung, machen dieses Haus zu einem idealen Zweitwohnsitz oder Investitionsobjekt für die Vermietung zu Erholungszwecken.
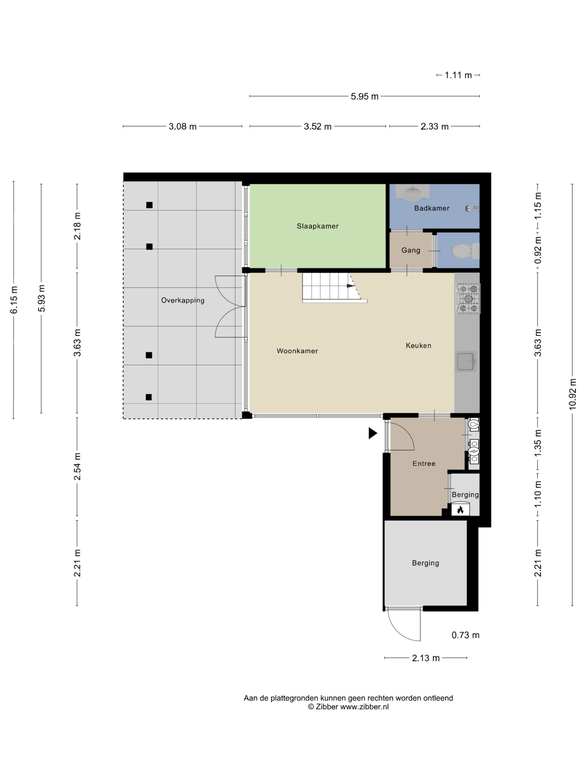
Aufteilung:
Eingang in die Diele mit Zugang zum hellen Wohnzimmer mit Flügeltüren zum sonnigen Garten. Die offene Küche (2018) ist mit verschiedenen Einbaugeräten ausgestattet, darunter ein Gasherd, eine Dunstabzugshaube, ein Kühlschrank und ein Geschirrspüler. Außerdem verfügt das Erdgeschoss über ein Schlafzimmer, eine Toilette und das Badezimmer mit Dusche und Waschbecken.
Erster Stock:
Über die Treppe im Wohnzimmer gelangen Sie zum Flur mit Galerie. Hier befinden sich der geräumige Flur und ein Schlafzimmer mit Dachfenster.
Außenbereich
Das Haus verfügt über einen gepflegten, sonnigen Garten in Ostlage. Unter dem großzügigen Vordach können Sie unabhängig von der Jahreszeit das Leben im Freien genießen. Parken ist auf dem eigenen Grundstück problemlos möglich. Ein angebauter Abstellraum bietet praktischen Stauraum für Fahrräder, Gartenmöbel oder Strandutensilien.
Baujahr: 1989
Heizung: Zentralheizungskessel aus dem Jahr 2021
Fensterrahmen: Holzfensterrahmen mit Doppelverglasung 
Besonderheiten:
* sonniger Garten mit großzügiger Überdachung;
* Wohnzimmer mit Flügeltüren zum Garten;
* Möbliert angeboten;
* das Haus wird zu Erholungszwecken vermietet, fragen Sie uns nach den Bedingungen;
* Parkkosten 2025 € 848,72;
* Energieeffizienzklasse C.
Der Ferienpark Schoneveld liegt an einem der saubersten Strände der Niederlande. Zwei moderne Strandpavillons sind zu Fuß erreichbar. Das Zentrum von Breskens ist nicht weit entfernt und bietet Einrichtungen wie Geschäfte, Restaurants, einen Yachthafen und öffentliche Verkehrsmittel. Ein perfekter Ort für alle, die das Meer, die Natur und Komfort lieben.
Overdracht
- Vraagprijs € 232.500,- k.k.
- Status Beschikbaar
- Aanvaarding In overleg
Bouw
- Soort woonhuis Twee onder een kapwoning
- Soort bouw Bestaande bouw
- Bouwjaar 1989
- Specifiek Gestoffeerd, gemeubileerd
Oppervlakten en inhoud
- Wonen 60 m2
- Externe bergruimte 5m2
- Perceel 157m2
- Inhoud 206m3
Indeling
- Aantal kamers 3 kamers
- Aantal badkamers 1 badkamer
- Badkamervoorzieningen Douche, wastafelmeubel
- Aantal woonlagen 2 woonlagen
Energie
- Energielabel C
- Isolatie Dubbel glas
- Verwarming Cv ketel
- Warm water Cv ketel
Kadastrale gegevens
- Eigendomssituatie Volle eigendom
Buitenruimte
- Ligging Aan park, aan rustige weg
- Tuin Voortuin, zijtuin
- Ligging tuin Aan park, aan rustige weg
- Soort berging Aangebouwd hout
Garage
- Soort garage Geen garage
Plattegronden
 
                         
                         
                         
                 
                                     
                                     
                                     
                                     
                                     
                                     
                                     
                                     
                                     
                                     
                                     
                                     
                                     
                                     
                                     
                                     
                                     
                                     
                                     
                                     
                                     
                                     
                                     
                                     
                                     
                                     
                                     
                 
         
        