Tournois.nl verwendet Cookies. Durch die weitere Nutzung dieser Website erklären Sie sich damit einverstanden.
Cookie-instellingenOmschrijving
Auf dem Bungalowpark Schoneveld, nicht weit von der Küste Zeelands entfernt, bieten wir Ihnen dieses geräumige, freistehende Ferienhaus (Typ Möwe). Das Haus befindet sich auf einem geräumigen Grundstück von 326m2 Land. Das Haus hat drei Schlafzimmer, zwei Badezimmer und einen geräumigen, nach Süden ausgerichteten Garten mit einer Überdachung.
Sind Sie auf der Suche nach einem Ferienhaus in der Nähe des Stadtzentrums, des Strandes und des Meeres? Dann vereinbaren Sie bald einen Termin für eine Besichtigung.
Erdgeschoss:
Beim Betreten des Hauses gelangen Sie in die Halle, von der aus Sie Zugang zu allen Räumen des Hauses haben. Das geräumige Wohnzimmer bietet durch Schiebetüren direkten Zugang zum hinteren Garten und hat eine offene Verbindung zur Einbauküche. Diese Küche ist mit einem 4-Flammen-Gasherd, Dunstabzug, Mikrowelle, Kühlschrank und Geschirrspüler ausgestattet. Ebenfalls im Erdgeschoss befinden sich ein Schlafzimmer, ein Badezimmer mit Badewanne und Waschbecken sowie ein separater Toilettenraum. Der angebaute Abstellraum ist von außen zugänglich und bietet praktischen zusätzlichen Stauraum und Platz für die Waschmaschine.
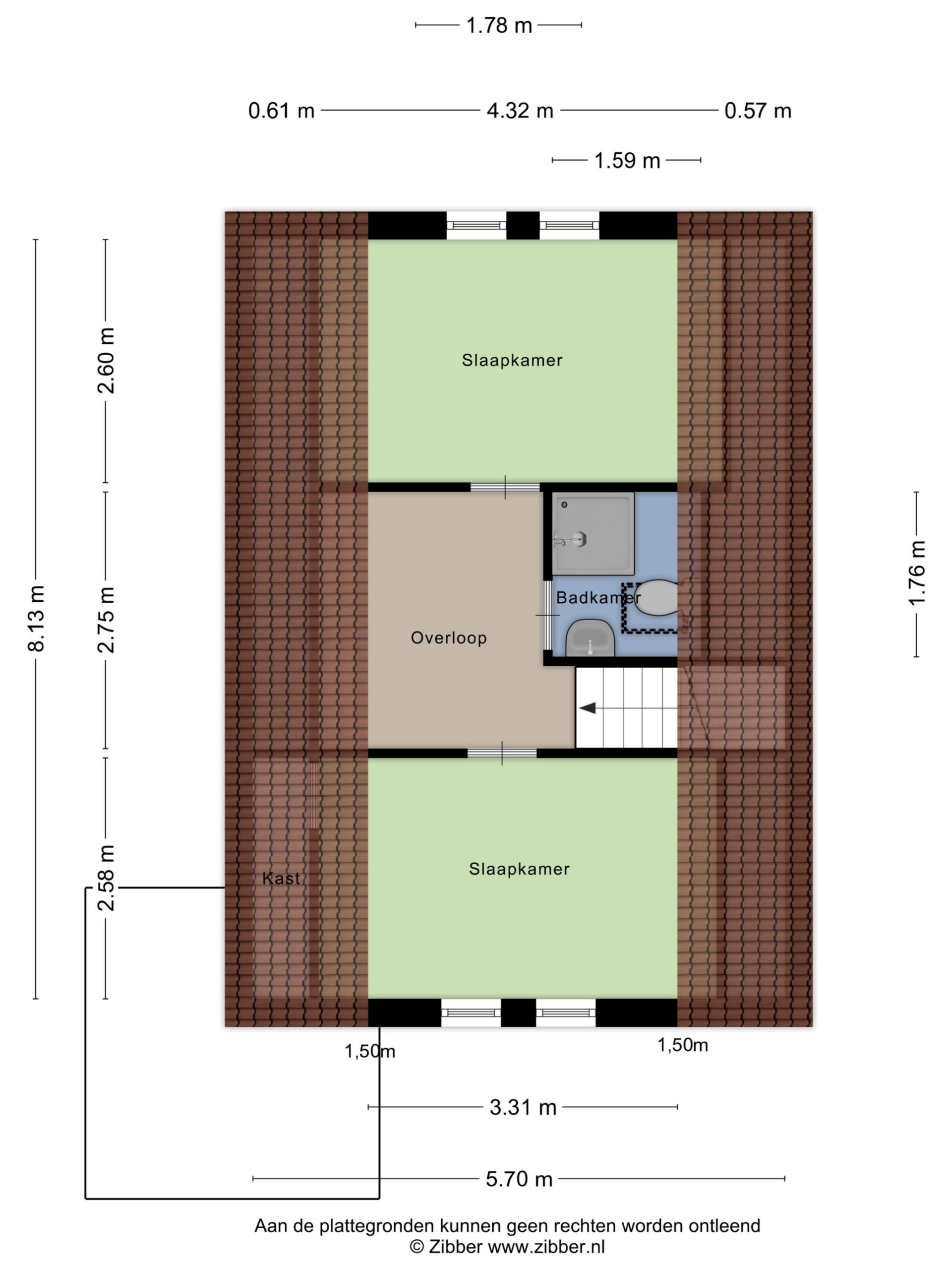
Etage:
über die Treppe in der Halle finden Sie die Landung, von hier aus können Sie die 2 Schlafzimmer und das Badezimmer erreichen. Das Badezimmer hat eine Dusche, Waschbecken und Toilette.
Garten:
Geräumiger, nach Süden ausgerichteter Garten mit viel Sonne und Privatsphäre. Ein stilvolles Vordach wurde 2021 installiert, ausgestattet mit elektrischen Schirmen - ideal für jede Jahreszeit. Die großzügige Terrasse bietet mehr als genug Platz für einen gemütlichen Sitz- und/oder Essbereich. Darüber hinaus verfügt der Garten über ein praktisches Gartenhaus für zusätzlichen Stauraum und einen Parkplatz vor Ort.
Baujahr: 1996
Fensterrahmen: Kunststoff-Fensterrahmen (2021) mit Doppelverglasung
Heizung: Heizkessel ab 2023
Details:
* Vordach installiert im Jahr 2021 mit elektrischen Bildschirmen;
* das Haus ist halb möbliert angeboten;
* Erdgeschoss Wohnen möglich durch Bad und Schlafzimmer im Erdgeschoss;
* das Haus ist nicht freizeitmäßig vermietet, fragen Sie uns über die Möglichkeiten;
* Parkkosten 2025 € 848,72 pro Jahr;
* Energielabel C.
Schoneveld liegt an einem der schönsten und saubersten Strände in den Niederlanden mit 2 modernen Strandpavillons zu Fuß erreichbar. Der Park befindet sich in unmittelbarer Nähe von Breskens. Breskens selbst hat neben dem Strand auch einen Jachthafen, mehrere Restaurants und Geschäfte.
Overdracht
- Vraagprijs € 375.000,- k.k.
- Status Beschikbaar
- Aanvaarding In overleg
Bouw
- Soort woonhuis Vrijstaande woning
- Soort bouw Bestaande bouw
- Bouwjaar 1996
- Specifiek Gestoffeerd, gemeubileerd
- Soort dak Zadeldak
Oppervlakten en inhoud
- Wonen 74 m2
- Overige inpandige ruimte 4m2
- Externe bergruimte 6m2
- Perceel 326m2
- Inhoud 258m3
Indeling
- Aantal kamers 4 kamers
- Aantal badkamers 2 badkamers
- Badkamervoorzieningen Toilet, douche, wastafel, ligbad, wastafelmeubel
- Aantal woonlagen 2 woonlagen
Energie
- Energielabel C
- Isolatie Dubbel glas, volledig geisoleerd
- Verwarming Cv ketel
- Warm water Cv ketel
Kadastrale gegevens
- Eigendomssituatie Volle eigendom, volle eigendom
Buitenruimte
- Ligging Aan park, aan rustige weg
- Tuin Achtertuin
- Ligging tuin Aan park, aan rustige weg
- Soort berging Aangebouwd steen
Garage
- Soort garage Geen garage
Plattegronden



