Tournois.nl verwendet Cookies. Durch die weitere Nutzung dieser Website erklären Sie sich damit einverstanden.
Cookie-instellingenOmschrijving
Dieses freistehende Haus befindet sich in der nahe gelegenen Gemeinde Schoondijke und bietet eine Oase der Ruhe und viel Platz, um die Natur zu genießen. Das Haus liegt auf einem großzügigen Grundstück von 826 m² und verfügt über ein geräumiges Wohnzimmer mit offener Küche und Kochinsel, drei komfortable Schlafzimmer und einen großen, nach Südosten ausgerichteten Garten mit einer Garage.
Sind Sie auf der Suche nach einem freistehenden Haus, das Platz und eine ländliche Lage vereint? Dann vereinbaren Sie einen Besichtigungstermin und überzeugen Sie sich selbst von den vielen Möglichkeiten, die dieses schlüsselfertige Haus zu bieten hat.
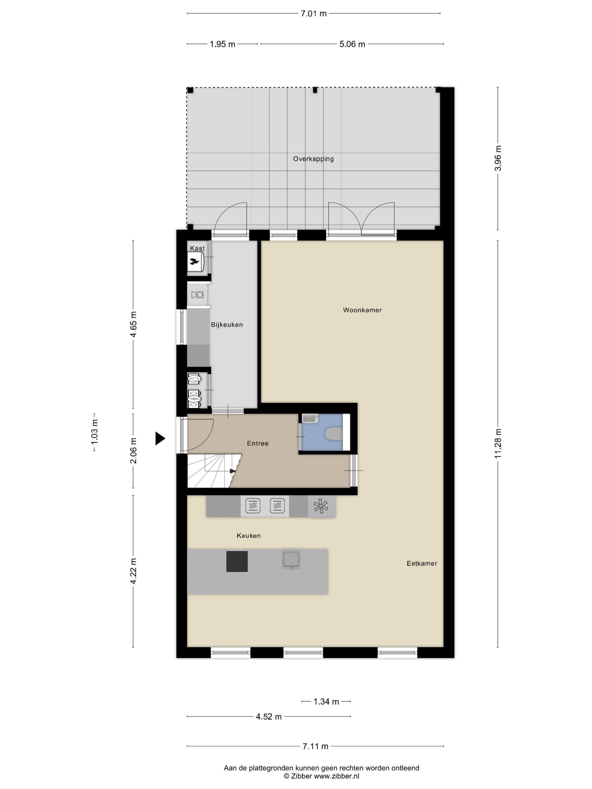
Das Erdgeschoss
Beim Betreten des Hauses gelangen Sie in eine geräumige Diele mit Zugang zu einer modernen Toilette und einem praktischen Hauswirtschaftsraum. Von der Diele aus gelangen Sie in das geräumige, helle Wohnzimmer mit offener Küche. Die Küche ist mit einer stilvollen Kochinsel und modernen Geräten ausgestattet, darunter ein Induktionskochfeld (2024), eine Dunstabzugshaube, ein Backofen, ein Kühlschrank, ein Gefrierschrank, eine Spülmaschine, ein Quooker (2024) und eine integrierte Kaffeemaschine (2024). Die Flügeltüren des Wohnzimmers bieten direkten Zugang zum sonnigen Garten. Das gesamte Erdgeschoss ist mit einer komfortablen Fußbodenheizung ausgestattet.
Etage
Über den Treppenabsatz im ersten Stock erreichen Sie drei geräumige Schlafzimmer, ideal für Familien oder die Einrichtung eines Arbeits- oder Hobbyraums. Das Badezimmer ist luxuriös mit einem Whirlpool, einem Doppelwaschbecken, einer begehbaren Dusche und einem zweiten WC ausgestattet. Darüber hinaus bietet die Etage einen praktischen begehbaren Kleiderschrank, der zusätzlichen Stauraum und Komfort bietet.
Dachboden
Das Haus verfügt über einen Stauraum auf dem Dachboden (Kopffreiheit), der über eine Bodentreppe erreichbar ist.
Garten
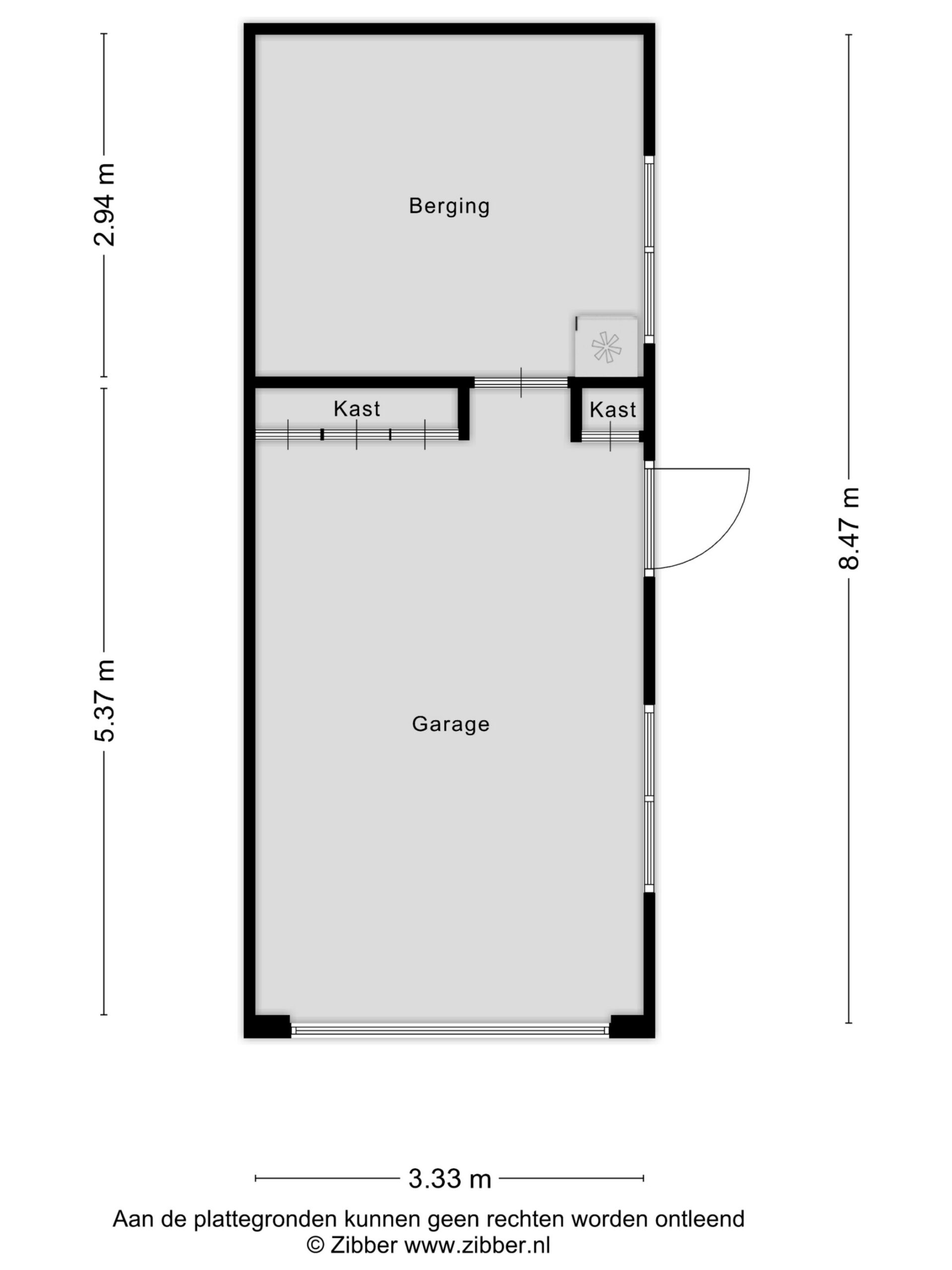
Der umliegende Garten bietet viel Privatsphäre und Sonne zu jeder Tageszeit. Der schön angelegte, nach Südosten ausgerichtete Garten verfügt über ein Vordach, das mit abschließbaren Tüchern am Haus befestigt ist, ein schöner Ort, um die Natur geschützt zu genießen. Auf der großzügigen Terrasse können Sie problemlos einen bequemen Sitz- und Essbereich einrichten. Der nach Norden ausgerichtete Vorgarten bietet eine geräumige Auffahrt mit Parkplatz und Zugang zur freistehenden Garage mit Schuppen im hinteren Garten.
Baujahr: bis auf drei Innenwände aus dem Jahr 1925 wurde das Haus im Jahr 2016 neu gebaut
Heizung: Zentralheizung 2017
Fensterrahmen: Kunststofffensterrahmen mit Doppelverglasung
Besonderheiten:
* ruhige Lage in Sasput, im Außenbezirk;
* Unverbaubarer Blick auf die Polderlandschaft;
* Strand und Meer in Fahrradentfernung;
* Geräumiger Garten rundum mit Garage;
* Dauerhafte Nutzung und Freizeitnutzung;
* Energielabel A;
* Sasput liegt weniger als 5 Kilometer von Breskens mit seinen schönen Stränden und dem lebhaften Zentrum entfernt. In nur 2 Kilometern Entfernung können Sie entlang der Schelde im Naturschutzgebiet 't Magereind frische Luft schnappen.
Overdracht
- Vraagprijs € 639.000,- k.k.
- Status Beschikbaar
- Aanvaarding Direct
Bouw
- Soort woonhuis Vrijstaande woning
- Soort bouw Bestaande bouw
- Bouwjaar 2016
Oppervlakten en inhoud
- Wonen 161 m2
- Overige inpandige ruimte 34m2
- Externe bergruimte 28m2
- Perceel 826m2
- Inhoud 721m3
Indeling
- Aantal kamers 4 kamers
- Aantal badkamers 1 badkamer
- Badkamervoorzieningen Toilet, dubbele wastafel, wastafelmeubel, inloopdouche, whirlpool
- Aantal woonlagen 3 woonlagen
- Voorzieningen Zonnepanelen
Energie
- Energielabel A
- Isolatie Dubbel glas, volledig geisoleerd
- Verwarming Cv ketel, vloerverwarming geheel
- Warm water Cv ketel, elektrische boiler eigendom
Kadastrale gegevens
- Eigendomssituatie Volle eigendom, volle eigendom
Buitenruimte
- Ligging Aan rustige weg, vrij uitzicht, beschutte ligging
- Tuin Achtertuin, voortuin
- Ligging tuin Aan rustige weg, vrij uitzicht, beschutte ligging
Garage
- Soort garage Vrijstaand steen
- Capaciteit 1 auto
Plattegronden




