Tournois.nl verwendet Cookies. Durch die weitere Nutzung dieser Website erklären Sie sich damit einverstanden.
Cookie-instellingenOmschrijving
Bent u op zoek naar een verrassend ruime en instapklare woning in één van de populairste wijken van Breskens? Deze uitstekend onderhouden woning aan de Oude Rijksweg 15 biedt een moderne indeling, veel lichtinval en praktische ruimtes zoals een inpandige garage, een extra kamer op de begane grond en een royale woonkamer met open keuken. Gelegen op een centrale locatie, dicht bij voorzieningen en op fietsafstand van het strand, combineert deze woning comfortabel wonen met een ideale ligging.
Benieuwd naar deze woning? Maak dan snel een afspraak voor een bezichtiging en ervaar het zelf.
Begane grond:
Bij binnenkomst via de entreehal met garderobe en toilet, komt u in de woonkamer met gashaard en een grote raampartij (met screen) dat zorgt voor veel natuurlijk licht. Aansluitend vindt u de moderne open Tinello keuken met Quooker, 6-pits gasfornuis, koelkast, vaatwasser, afzuigkap, combi- oven en veel werk- en kastruimte. De keuken loopt naadloos over in de eetkamer, waar dubbele openslaande deuren toegang geven tot de achtertuin.
Aan de achterzijde van de woning is een extra kamer gesitueerd, ideaal als speelkamer, werkkamer of logeerkamer. Daarnaast is er een inpandige garage aanwezig die ook binnendoor te bereiken is — ideaal voor opslag, hobby of als bijkeuken.
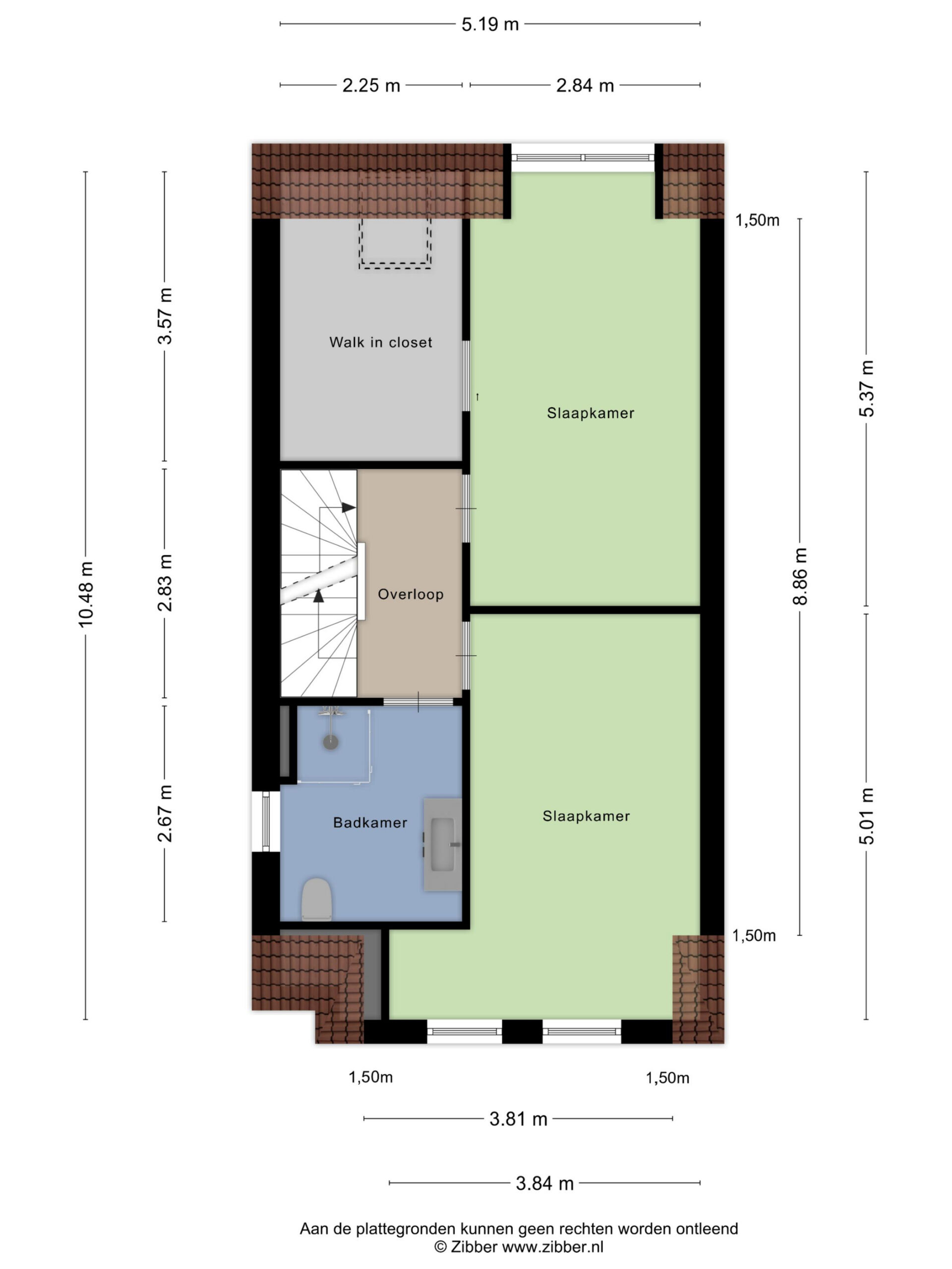
Eerste verdieping:
Op de eerste verdieping, voorzien van airco, komt u via de overloop bij drie ruime slaapkamers, waaronder een royale master bedroom. De tweede slaapkamer is eveneens ruim en licht. Beide slaapkamers zijn voorzien van rolluiken. De moderne badkamer is uitgerust met een inloopdouche, toilet, wastafelmeubel en vloerverwarming.
Tweede verdieping:
De vaste trap leidt naar een open zolderverdieping, een ideale ruimte voor een extra slaapkamer, hobbyruimte of thuiskantoor. Hier bevindt zich ook de wasmachineaansluiting. Dankzij de grote vloeroppervlakte en natuurlijke lichtinval zijn de mogelijkheden eindeloos.
Tuin:
De woning beschikt over een verzorgde, zonnige tuin op het westen. Dankzij de openslaande deuren vanuit de eetkamer loopt u zo het terras op, dat is voorzien van een elektrische zonnewering — ideaal om in alle comfort van de buitenlucht te genieten. Een overkapping zorgt voor beschutting bij minder weer en maakt de tuin het hele jaar door bruikbaar. De tuin is verder uitgerust met tuinverlichting en een praktische berging, perfect voor fietsen, tuingereedschap of extra opslagruimte. Kortom: een sfeervolle buitenruimte met alle gemakken.
Bouwjaar: 2017
Verwarming: cv-ketel uit 2017
Kozijnen: kunststof kozijnen met dubbel glas
Bijzonderheden:
* de woning is gelegen aan de rand van Breskens, in de populaire nieuwbouwwijk “De Roode Polder”;
* de woning beschikt over 12 zonnepanelen;
* de begane grond beschikt over vloerverwarming;
* screen aan de raampartij in de woonkamer;
* Walk-in closet bij de master bedroom;
* zonnige achtertuin op het westen;
* gelegen op een centrale locatie nabij voorzieningen en strand.
* energielabel A.
Zoekt u een veelzijdige, ruime woning met veel comfort en een praktische indeling? Dan is de Oude Rijksweg 15 in Breskens zeker een bezichtiging waard!
Overdracht
- Vraagprijs € 599.000,- k.k.
- Status Beschikbaar
- Aanvaarding Per datum
Bouw
- Soort woonhuis Twee onder een kapwoning
- Soort bouw Bestaande bouw
- Bouwjaar 2017
- Soort dak Zadeldak
Oppervlakten en inhoud
- Wonen 136 m2
- Overige inpandige ruimte 11m2
- Externe bergruimte 8m2
- Perceel 363m2
- Inhoud 520m3
Indeling
- Aantal kamers 5 kamers
- Aantal badkamers 1 badkamer
- Badkamervoorzieningen Toilet, douche, wastafelmeubel
- Aantal woonlagen 3 woonlagen
- Voorzieningen Mechanische ventilatie, rolluiken, airconditioning, zonnepanelen
Energie
- Energielabel A
- Isolatie Dubbel glas, volledig geisoleerd
- Verwarming Cv ketel
- Warm water Cv ketel
Kadastrale gegevens
- Eigendomssituatie Volle eigendom
Buitenruimte
- Ligging In woonwijk
- Tuin Achtertuin
- Ligging tuin In woonwijk
- Soort berging Vrijstaand hout
Garage
- Soort garage Inpandig
- Capaciteit 1 auto
Plattegronden




