Tournois.nl verwendet Cookies. Durch die weitere Nutzung dieser Website erklären Sie sich damit einverstanden.
Cookie-instellingenOmschrijving
Im Ferienpark Zeebad in Breskens, nur wenige Gehminuten vom weitläufigen Strand und den Dünen entfernt, bieten wir Ihnen diese moderne, freistehende Lodge auf eigenem Grundstück an. Das Haus steht auf einem 229m² großen Grundstück und verfügt über ein helles, geräumiges Wohnzimmer, zwei Schlafzimmer mit Einbauschränken, eine voll ausgestattete Küche und eine sonnige Terrasse mit eigenem Parkplatz inklusive Ladestation.
Diese Lodge ist ideal für alle, die eine komfortable Ferienwohnung am Meer suchen, die eine angenehme Mischung aus Ruhe, Platz und Erreichbarkeit bietet. In unmittelbarer Nähe finden Sie die Fahrrad-/Fußgängerfähre nach Vlissingen, und das gemütliche Zentrum von Breskens mit seinen Geschäften, Restaurants und Terrassen ist nur wenige Minuten entfernt.
Aufteilung
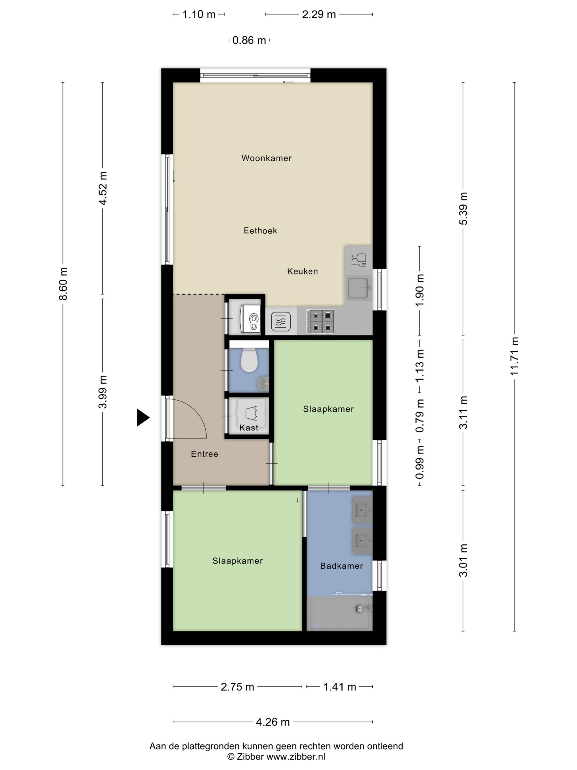
Sie betreten die Diele, von der aus Sie alle Räume erreichen. Auf der linken Seite befindet sich das Wohnzimmer mit offener Küche, die mit Einbaugeräten wie einem 4-Flammen-Gasherd, einer Dunstabzugshaube, einem Kühlschrank, einem Kombi-Backofen und einem Geschirrspüler ausgestattet ist. Durch die Schiebetür haben Sie direkten Zugang zum Garten.
Darüber hinaus verfügt das Haus über zwei Schlafzimmer, ein Badezimmer und ein separates WC. Beide Schlafzimmer sind mit Einbauschränken ausgestattet. Das Badezimmer verfügt über eine ebenerdige Dusche und einen Doppelwaschtisch. Außerdem gibt es einen kleinen Abstellraum mit Waschmaschinenanschluss.
Außenbereich
Die Wohnung verfügt über eine sonnige Terrasse mit einer gemütlichen Sitzecke, auf der Sie die Sonne und die frische Seeluft optimal genießen können. Das Grundstück verfügt außerdem über einen Abstellraum für zusätzlichen Stauraum und einen eigenen Parkplatz direkt neben der Wohnung, der mit einer Ladestation für Elektrofahrzeuge ausgestattet ist.
Besonderheiten:
* Der Freizeitpark Zeebad liegt günstig, direkt an den Dünen, dem Meer und dem Strand, nur wenige Gehminuten von der Fahrrad-/Fußgängerfähre nach Vlissingen und dem gemütlichen Zentrum von Breskens mit verschiedenen Geschäften, Terrassen und Restaurants entfernt.
* möbliert angeboten.
* Das Haus wird zu Erholungszwecken vermietet, fragen Sie uns nach den Bedingungen;
* Parkplatz mit Ladestation auf dem eigenen Grundstück;
* Parkgebühren 2025: 1.589,22 € pro Jahr;
* Die Mehrwertsteuer-Revisionsfrist wird verschoben.
Overdracht
- Vraagprijs € 239.000,- k.k.
- Status Beschikbaar
- Aanvaarding In overleg
Bouw
- Soort woonhuis Vrijstaande woning
- Soort bouw Bestaande bouw
- Bouwjaar 2019
- Specifiek Gestoffeerd, gemeubileerd
- Soort dak Plat dak
Oppervlakten en inhoud
- Wonen 50 m2
- Externe bergruimte 8m2
- Perceel 229m2
- Inhoud 185m3
Indeling
- Aantal kamers 3 kamers
- Aantal badkamers 1 badkamer
- Badkamervoorzieningen Dubbele wastafel, wastafelmeubel, inloopdouche
- Aantal woonlagen 1 woonlagen
- Voorzieningen Schuifpui
Energie
- Isolatie Dubbel glas, volledig geisoleerd
- Verwarming Cv ketel
- Warm water Cv ketel
Kadastrale gegevens
- Eigendomssituatie Volle eigendom
Buitenruimte
- Ligging Aan park, aan rustige weg
- Tuin Zijtuin
- Ligging tuin Aan park, aan rustige weg
- Soort berging Vrijstaand hout
Garage
- Soort garage Geen garage
Plattegronden


