Tournois.nl verwendet Cookies. Durch die weitere Nutzung dieser Website erklären Sie sich damit einverstanden.
Cookie-instellingenOmschrijving
Im Ferienpark Scheldeveste, in fußläufiger Entfernung zum Meer und dem schönen Strand von Breskens, finden Sie dieses geräumige und schlüsselfertige Ferienhaus (Typ Zwin) auf einem großzügigen Grundstück von 429 m². Das Haus verfügt über ein geräumiges Wohnzimmer mit renovierter offener Küche, drei Schlafzimmer, ein renoviertes Badezimmer und einen großen, nach Südwesten ausgerichteten Garten.
Das Haus liegt günstig am Strandpark Scheldeveste, in kurzer Entfernung zu den Dünen, dem Meer und dem Strand, der Fahrrad-/Fußgängerfähre nach Vlissingen und dem gemütlichen Zentrum von Breskens mit verschiedenen Geschäften, Terrassen und Restaurants.
Erdgeschoss:
Sie betreten das Haus durch einen Flur mit Zugang zum Toilettenraum, der 2020 erneuert wurde. Das geräumige, gemütliche Wohnzimmer mit einer Tür zum Garten bietet viel Licht. Die offene Küche (Bruynzeel) wurde 2020 renoviert und ist mit Einbaugeräten ausgestattet, darunter ein Induktionskochfeld, eine Dunstabzugshaube, ein Kombibackofen, ein Kühlschrank mit Gefrierfach und ein Geschirrspüler. Darüber hinaus verfügt die Immobilie über einen praktischen, von außen zugänglichen Abstellraum mit einer Waschmaschine, einem Trockner und einem zweiten Kühlschrank.
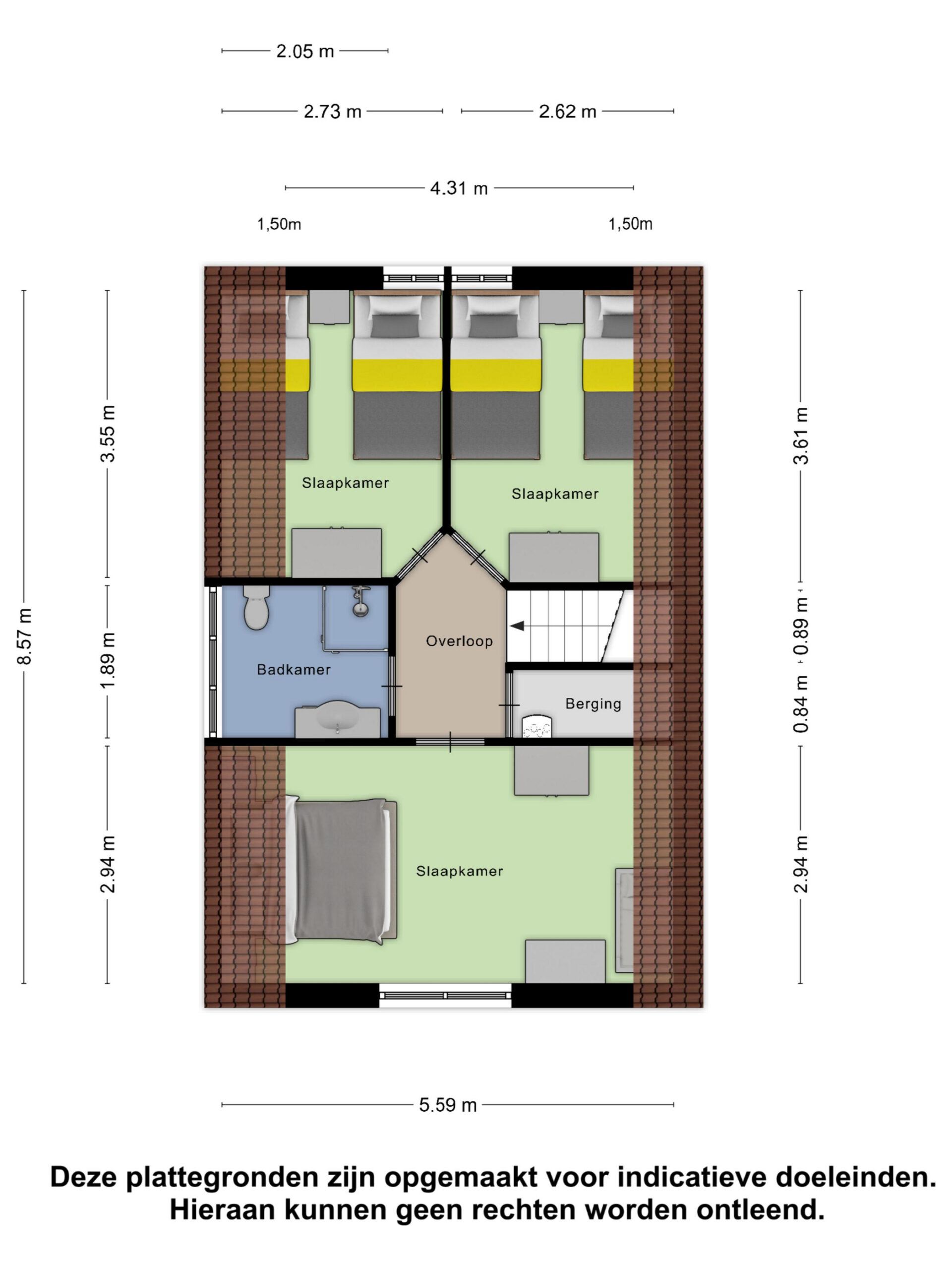
Stockwerk:
Im Obergeschoss befinden sich drei geräumige Schlafzimmer und das luxuriöse Badezimmer, das mit einer Dusche, einer hängenden Toilette und einem Waschbecken ausgestattet ist. Es gibt auch zusätzlichen Stauraum zur Verfügung.
Garten:
Der geräumige und sonnige Garten liegt auf der Südwestseite, so dass Sie hier fast den ganzen Tag die Sonne genießen können. Der Garten ist pflegeleicht und verfügt über eine großzügige Terrasse, ideal für einen gemütlichen Sitz- und Essbereich. Darüber hinaus bietet das Haus den Komfort eines privaten Parkplatzes, so dass Sie immer einen Platz für Ihr Auto haben.
Baujahr: 1998
Fensterrahmen: Holzfensterrahmen mit Doppelverglasung
Heizung: Zentralheizungskessel ab 2021
Details:
* Küche und Toilette sind 2020 erneuert worden;
* Abstellraum mit Waschmaschine, Trockner und zweitem Kühlschrank;
* Das Haus wurde in den letzten Jahren gründlich renoviert und modernisiert;
* Das Haus verfügt über 4 Sonnenkollektoren;
* Das Objekt wird möbliert angeboten;
* Das Objekt wird zu Freizeitzwecken vermietet, fragen Sie uns nach den Konditionen;
* Parkkosten 2025 € 1.748,43 pro Jahr, dies beinhaltet freien Zugang zum Schwimmbad;
* Energielabel B.
Overdracht
- Vraagprijs € 419.000,- k.k.
- Status Verkocht
- Aanvaarding In overleg
Bouw
- Soort woonhuis Vrijstaande woning
- Soort bouw Bestaande bouw
- Bouwjaar 1998
- Specifiek Gestoffeerd, gemeubileerd
- Soort dak Zadeldak
Oppervlakten en inhoud
- Wonen 88 m2
- Overige inpandige ruimte 6m2
- Perceel 429m2
- Inhoud 345m3
Indeling
- Aantal kamers 4 kamers
- Aantal badkamers 1 badkamer
- Badkamervoorzieningen Toilet, douche, wastafelmeubel
- Aantal woonlagen 2 woonlagen
- Voorzieningen Buitenzonwering, zonnepanelen
Energie
- Energielabel B
- Isolatie Dubbel glas, volledig geisoleerd
- Verwarming Cv ketel
- Warm water Cv ketel
Kadastrale gegevens
- Eigendomssituatie Volle eigendom
Buitenruimte
- Ligging Aan park, aan rustige weg
- Tuin Tuin rondom
- Ligging tuin Aan park, aan rustige weg
- Soort berging Inpandig
Garage
- Soort garage Geen garage
Plattegronden


