Tournois.nl verwendet Cookies. Durch die weitere Nutzung dieser Website erklären Sie sich damit einverstanden.
Cookie-instellingenOmschrijving
Sind Sie auf der Suche nach einem Ferienhaus in kurzer Entfernung zum Strand, zum Meer und zum Zentrum von Breskens? Dann ist diese Immobilie auf jeden Fall einen Besuch wert. Im Erholungspark Scheldeveste, an der schönen seeländisch-flämischen Küste gelegen, finden Sie dieses geräumige, freistehende Ferienhaus (Typ Zwin) mit 3 Schlafzimmern, einer großen Terrasse und einem sonnigen Wohnzimmer auf einem großzügigen Grundstück von 447 m².
Die Lage ist ideal: nur wenige Gehminuten von den Dünen, dem Meer und dem Strand entfernt. In unmittelbarer Nähe finden Sie die Fahrrad- und Fußgängerfähre nach Vlissingen und das attraktive Zentrum von Breskens, wo Sie eine große Auswahl an Geschäften, Terrassen und Restaurants vorfinden.
Erdgeschoss:
Beim Betreten finden Sie einen geräumigen Flur mit Zugang zu einem Toilettenraum und einer Treppe in den ersten Stock. Das helle Wohnzimmer mit Flügeltüren zum hinteren Garten bietet viel Licht. Die offene Küche ist voll ausgestattet mit Einbaugeräten wie Induktionskochfeld (2024), Dunstabzugshaube (2024), Kombibackofen, Kühlschrank (2024) und Geschirrspüler. Darüber hinaus verfügt die Immobilie über einen praktischen Abstellraum, der von außen zugänglich ist.
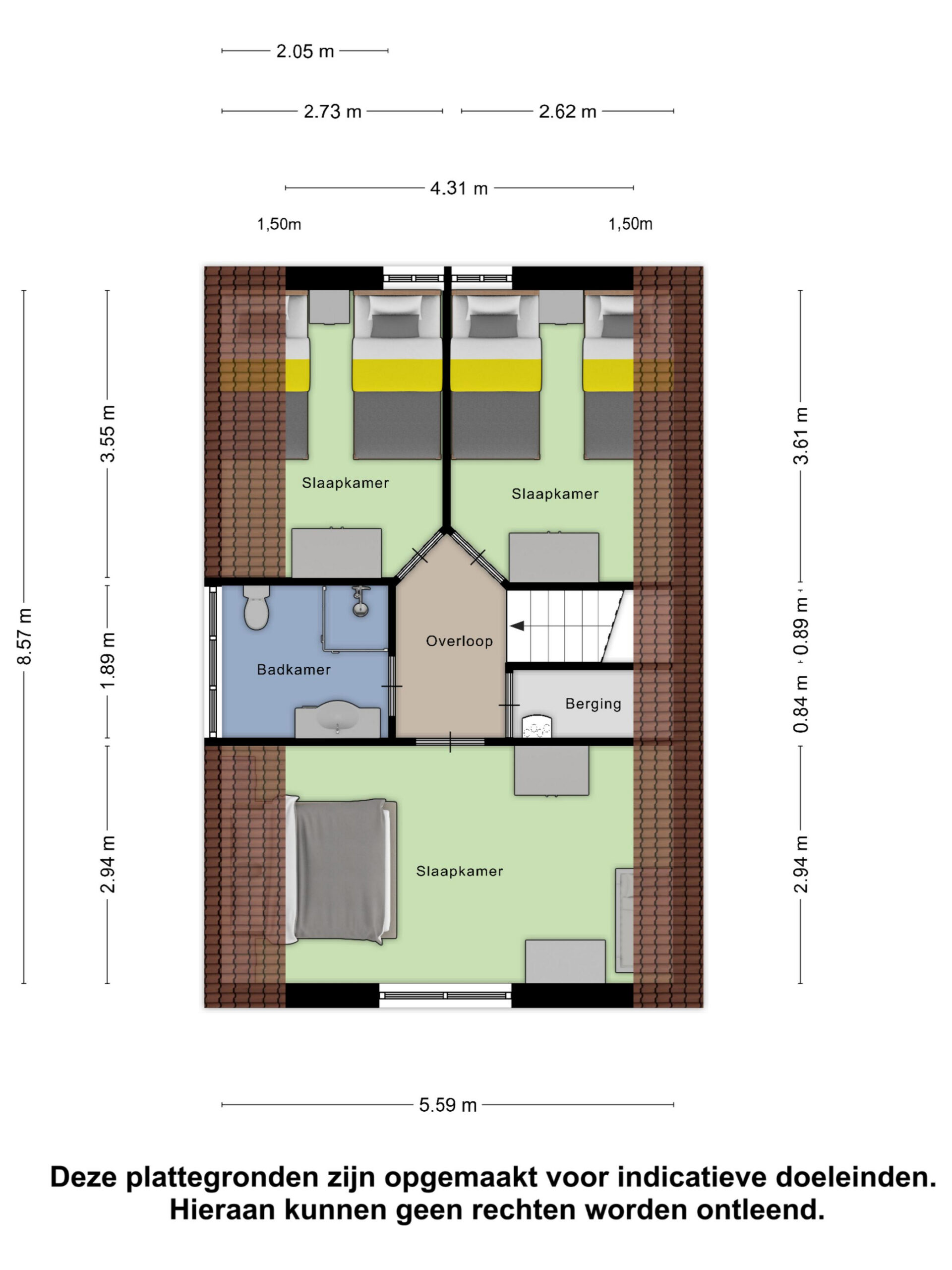
Stockwerk:
In der ersten Etage befinden sich drei komfortable Schlafzimmer. Das Badezimmer hat eine Dusche, ein Waschbecken und eine Toilette. Auf dieser Etage gibt es auch einen zusätzlichen Abstellraum.
Garten:
Der geräumige, pflegeleichte Garten ist nach Süden ausgerichtet und verfügt über eine abschließbare Terrasse mit Markisen, die sich ideal für einen gemütlichen Sitzbereich eignet. Zur Immobilie gehört auch ein eigener Parkplatz auf dem Grundstück mit Platz für zwei Autos.
Baujahr: 1998
Fensterrahmen: Holzfensterrahmen mit Doppelverglasung
Heizung: Zentralheizungsboiler von 2015
Details:
* Der Erholungspark Scheldeveste liegt direkt an den Dünen, dem Meer und dem Strand, nur wenige Gehminuten von der Fahrrad-/Fußgängerfähre nach Vlissingen und dem gemütlichen Zentrum von Breskens mit verschiedenen Geschäften, Terrassen und Restaurants entfernt;
* Kühlschrank, Herd und Dunstabzugshaube wurden 2024 erneuert;
* Ausreichend Platz auf der Auffahrt zum Parken von 2 Autos;
* geräumiger Garten auf der Rückseite nach Süden;
* wird möbliert angeboten;
* Die Immobilie wird freizeitmäßig vermietet, fragen Sie uns nach den Konditionen;
* Parkgebühren 2025 € 1.748,43 pro Jahr, darin enthalten ist u.a. der freie Zugang zum Schwimmbad.
* Energielabel C.
Overdracht
- Vraagprijs € 379.000,- k.k.
- Status Beschikbaar
- Aanvaarding In overleg
Bouw
- Soort woonhuis Vrijstaande woning
- Soort bouw Bestaande bouw
- Bouwjaar 1998
- Specifiek Gestoffeerd, gemeubileerd
- Soort dak Zadeldak
Oppervlakten en inhoud
- Wonen 88 m2
- Overige inpandige ruimte 6m2
- Perceel 447m2
- Inhoud 345m3
Indeling
- Aantal kamers 4 kamers
- Aantal badkamers 1 badkamer
- Badkamervoorzieningen Toilet, douche, wastafelmeubel
- Aantal woonlagen 2 woonlagen
- Voorzieningen Buitenzonwering
Energie
- Energielabel C
- Isolatie Dubbel glas, volledig geisoleerd
- Verwarming Cv ketel
- Warm water Cv ketel
Kadastrale gegevens
- Eigendomssituatie Volle eigendom
Buitenruimte
- Ligging Aan park, aan rustige weg
- Tuin Achtertuin
- Ligging tuin Aan park, aan rustige weg
- Soort berging Inpandig
Garage
- Soort garage Geen garage
Virtuele tours
Plattegronden


