Alle foto’s (27)
Beschikbaar
Hoofdplaat

Koningin Julianastraat 20

  • 99 m²
  • 167 m²
  • 3 slaapkamers
€ 255.000,- kosten koper
Omschrijving

Deze instapklare tussenwoning aan de Koningin Julianastraat biedt een prachtig en vrij uitzicht over het uitgestrekte Zeeuwse polderlandschap. De woning is met zorg onderhouden en functioneel ingedeeld met drie volwaardige slaapkamers en een moderne badkamer (2025), waardoor het een ideale basis is voor een (startend) gezin. Door de open ligging aan de achterzijde geniet u in en rondom de woning van een heerlijk gevoel van ruimte en rust, terwijl de afwerking van de woning zorgt voor een modern en direct bewoonbaar comfort.

De locatie in Hoofdplaat is perfect voor liefhebbers van rust en natuur. U woont hier op korte afstand van de Westerscheldedijk, waar u kunt genieten van de weidse vergezichten en de voorbijvarende scheepvaart. Voor de dagelijkse voorzieningen, winkels en gezellige terrassen is de badplaats Breskens vlot bereikbaar. Deze woning combineert de gemoedelijkheid van het dorpse wonen met de nabijheid van de Zeeuwse kust en alle nodige faciliteiten binnen handbereik.

Indeling
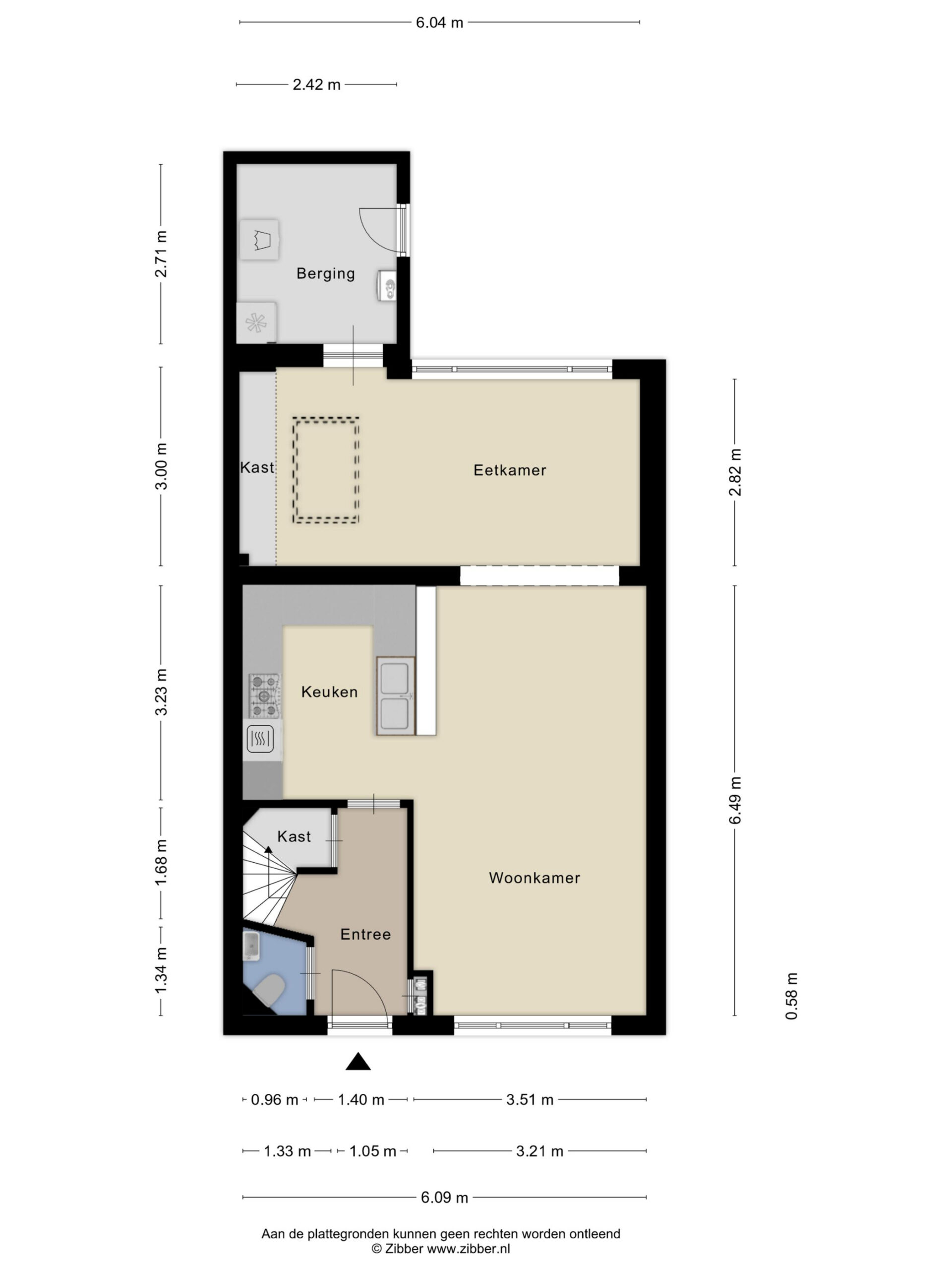
Bij binnenkomst betreedt u de hal met toegang tot de in 2025 vernieuwde toiletruimte, de woonkamer en de open keuken. De ruime en lichte woonkamer is voorzien van een visgraat pvc-vloer en staat in open verbinding met de keuken uit 2021. De moderne keuken is uitgerust met een 5-pits gaskookplaat, afzuigkap, magnetron, oven, koelkast en vaatwasser. Daarnaast beschikt de keuken over een praktische bar.

Vanuit de woonkamer bereikt u tevens de aanbouw met dakraam, waar zich de royale eetkamer bevindt. Deze ruimte beschikt over een vaste kast voor extra opbergruimte en biedt toegang tot de bijkeuken.

Eerste verdieping
Via de trap in de hal bereikt u de eerste verdieping. De overloop geeft toegang tot drie ruime slaapkamers. De badkamer, vernieuwd in 2025, is modern afgewerkt en voorzien van een ligbad, inloopdouche, toilet en een dubbel wastafelmeubel met spiegelkast.

Tuin
De onderhoudsvriendelijke achtertuin is gelegen op het oosten en beschikt over een ruim terras, ideaal voor het creëren van een gezellige zit- en/of eethoek. Daarnaast is er een houten overkapping met bergruimte aanwezig, perfect voor het organiseren van gezellige barbecue-avonden met vrienden en familie.

Bouwjaar: 1958
Verwarming: cv-ketel (huur) uit 2022
Kozijnen: grotendeels kunststof kozijnen met HR++ glas (m.u.v. kozijn achterzijde en achterdeur)

Bijzonderheden:
* badkamer en toiletruimte vernieuwd in 2025;
* keuken vernieuwd in 2021;
* elektra vernieuwd in 2021;
* kozijnen eerste verdieping zijn voorzien van rolluiken;
* onderhoudsvriendelijk achtertuin met overkapping en een bergruimte;
* centraal gelegen in Hoofdplaat;
* nieuw energielabel aangevraagd.

Hoofdplaat is centraal gelegen tussen Terneuzen en Sluis. De woning ligt in een stukje Zeeuws-Vlaanderen waar het toerisme de rust niet verstoort en waar op loopafstand een klein strandje met een mooie steiger een idyllisch plaatje vormt. Een mooi startpunt om te fietsen langs de zeekustroute.

Toon meer
Overdracht
  • Vraagprijs € 255.000,- k.k.
  • Status Beschikbaar
  • Aanvaarding In overleg
Bouw
  • Soort woonhuis Tussenwoning
  • Soort bouw Bestaande bouw
  • Bouwjaar 1958
  • Soort dak Zadeldak
Oppervlakten en inhoud
  • Wonen 99 m2
  • Overige inpandige ruimte 7m2
  • Externe bergruimte 5m2
  • Perceel 167m2
  • Inhoud 374m3
Indeling
  • Aantal kamers 4 kamers
  • Aantal badkamers 1 badkamer
  • Badkamervoorzieningen Ligbad, toilet, dubbele wastafel, inloopdouche
  • Aantal woonlagen 3 woonlagen
  • Voorzieningen Rolluiken, buitenzonwering
Energie
  • Isolatie Vloerisolatie, dubbel glas
  • Verwarming Cv ketel
  • Warm water Cv ketel
Kadastrale gegevens
  • Eigendomssituatie Volle eigendom
Buitenruimte
  • Ligging Vrij uitzicht
  • Tuin Achtertuin
  • Ligging tuin Vrij uitzicht
  • Soort berging Vrijstaand hout
Garage
  • Soort garage Geen garage
Toon meer
Plattegronden
Video

Wir helfen Ihnen gerne!

Wir würden gerne wissen, was wir für Sie tun können. Hinterlassen Sie eine Nachricht, und wir werden Sie per Telefon oder E-Mail kontaktieren.